球赛押注APP官方
Jiangsu Shengli Centrifuge Manufacturing Co., Ltd.
认真做事,诚信做人
全自动卸料离心机/石膏离心机
产品中心
PRODUCTS
新闻动态
Shengli Centrifuge Manufacturing
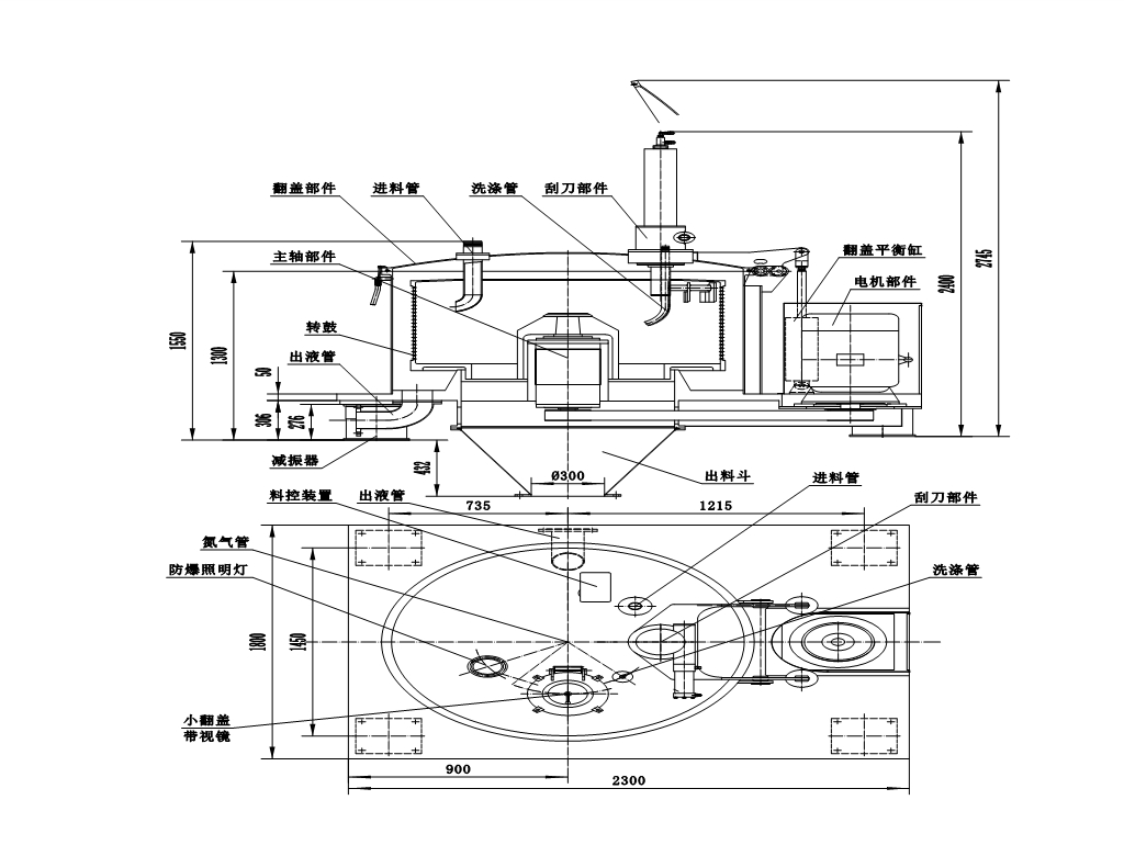
全自动离心机的构造
发布时间:2021-08-27
全自动离心机是一款可以自动进料并自动将物料刮下来的离心机,可以实现无人看护,按照设定的程序自行工作的可实现全自动工作的离心机。
全自动离心机主要由离心机主机、液压站、PLC变频柜、现场操作箱组成。
全自动离心机的主机包括:离心机机械部分、进料管、进料阀、洗涤管、洗涤阀、刮刀油缸组件、料位控制器、振动保护仪、电动机;
全自动离心机的液压站包括:箱体、电机、电磁阀、油管接口;
全自动离心机的PLC变频柜:包括机壳、PLC可编程序控制器、触摸屏、 电气元器件、空开、继电器;
全自动离心机的现场操作箱包括:按钮、指示灯、急停按钮、报警灯。

网站首页 | 公司简介 | 产品中心 | 新闻动态 | 客户服务 | 企业风貌 | 荣誉资质 | 在线咨询 | 球赛qiusai(中国) | ENGLISH
球赛押注APP官方 版权所有(C)2021 网络支持 化工网 生意宝 网盛大宗 著作权声明 备案序号:苏ICP备16066832号